Slide bài giảng công nghệ 8 cánh diều bài 5: Bản vẽ nhà
Slide điện tử bài 5: Bản vẽ nhà. Kiến thức bài học được hình ảnh hóa, sinh động hóa. Trình bày với các hiệu ứng hiện đại, hấp dẫn. Giúp học sinh hứng thú học bài. Học nhanh, nhớ lâu. Có tài liệu này, hiệu quả học tập của học môn Công nghệ 8 cánh diều sẽ khác biệt
Bạn chưa đủ điều kiện để xem được slide bài này. => Xem slide bài mẫu
Tóm lược nội dung
BÀI 5. BẢN VẼ NHÀ
Câu hỏi: Khi xây dựng một ngôi nhà, người thợ sử dụng bản vẽ nhà để làm gì?
Trả lời rút gọn:
Để dự toán chi phí và xây dựng ngôi nhà đúng như mong muốn.
I. NỘI DUNG BẢN VẼ NHÀ
1. Nội dung
Câu hỏi: Quan sát Hình 5.1 và cho biết: Bản vẽ nhà gồm mấy hình biểu diễn? Tên gọi các hình biểu diễn đó là gì?

Trả lời rút gọn:
Bản vẽ nhà gồm 3 hình biểu diễn, đó là:
- Mặt đứng.
- Mặt bằng (hình cắt bằng).
- Mặt cắt.
2. Kí hiệu quy ước một số bộ phận của ngôi nhà
Câu hỏi: Những kí hiệu nào trong bảng kí hiệu quy ước được sử dụng ở Hình 5.1?
Trả lời rút gọn:
- Cửa đi một cánh tên mặt đứng và mặt bằng.
- Cửa đi bốn cánh trên mặt bằng.
- Cửa sổ đơn hai cánh trên mặt bằng.
ii. đọc bản vẽ nhà
Câu hỏi: Đọc bản vẽ nhà Hình 5.3 theo trình tự các bước ở Bảng 5.2.

Trả lời rút gọn:
| 1. Khung tên | - Tên gọi ngôi nhà: Nhà mái bằng 1 tầng. - Tỉ lệ bản vẽ: 1:50 - Nơi thiết kế: Công ty xây dựng dân dụng |
| 2. Hình biểu diễn | - Tên gọi các hình biểu diễn của ngôi nhà: Mặt đứng, mặt bằng, mặt cắt. - Vị trí đặt các hình biểu diễn: - Mặt đứng ở vị trí hình chiếu đứng. - Mặt bằng ở vị trí hình chiếu bằng. - Mặt cắt ở vị trí hình chiếu cạnh. |
| 3. Kích thước | - Kích thước chung của ngôi nhà: 13800 x 7800 x 4500 - Kích thước của từng phòng: - Phòng khách: 5700 x 3600 mm - Phòng ngủ 1: 4650 x 4000 mm - Phòng ngủ 2: 4650 x 4000 mm - Bếp + phòng ăn: 5100 x 3600 mm - Phòng vệ sinh: 3300 x 1500 mm - Hiên nhà: 7800 x 1600 mm - Sân nhà: 7800 x 1400 mm - Kích thước của từng loại cửa: - Cửa đi đơn 4 cánh: 2200 x 1600 mm - Cửa đi đơn 1 cánh (phòng ngủ): 800 mm - Cửa đi đơn 1 cánh (phòng vệ sinh): 700 x 650 mm - Cửa sổ đi đơn 2 cánh: 1300 mm - Cửa sổ đi đơn 2 cánh (nhà vệ sinh): 600 mm |
| 4. Các bộ phận chính của ngôi nhà | - Số phòng: 5 phòng - Số lượng cửa đi, cửa sổ: cửa đi: 5 cái, cửa sổ: 5 cái - Loại cửa được sử dụng: cửa đi đơn 4 cánh, cửa đi đơn 1 cánh, cửa sổ đi đơn 2 cánh. |
vận dụng
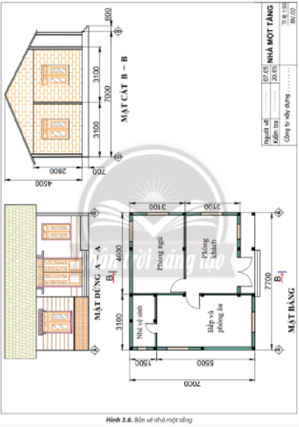
Câu hỏi: Sưu tầm của một bản vẽ nhà đơn giản và đọc bản vẽ đó.
Trả lời rút gọn:

| 1. Khung tên | - Nhà một tầng - Tỉ lệ 1:150 - Công ty xây dựng.... |
| 2. Hình biểu diễn | - Mặt bằng - Mặt đứng A - A - Mặt cắt B – B |
| 3. Kích thước | - Kích thước chung: Dài 7700, rộng 7000, cao 5200 (tính cả chiều cao nền nhà). - Kích thước từng bộ phận: + Phòng khách: 4600 x 3100. + Phòng ngủ: 4600 x 3100. + Bếp và phòng ăn: 7000 x 3100 (kể cả nhà vệ sinh: 3100 x 1500). |
| 4. Các bộ phận chính của ngôi nhà | - Ba phòng. - 1 cửa đi đơn 2 cánh; 3 cửa đi 1 cánh; 7 cửa sổ đơn. - Bậc thềm (2 bậc). |